
Projetos seguros, econômicos e executáveis
Engenharia e arquitetura alinhadas às normas brasileiras
Estrutural
Estruturas que passam no cálculo e funcionam na obra
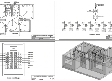
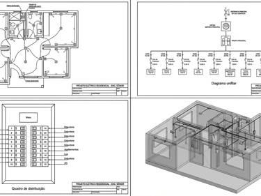
Nada de gambiarra: projetos elétricos claros, econômicos e aprováveis
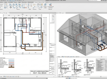
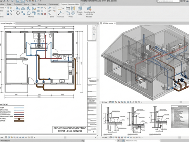
Projetos hidráulicos inteligentes que previnem dor de cabeça depois da obra pronta
Elétrica
Hidráulica
Solicite seu projeto agora
Engenharia e arquitetura confiáveis
Unir engenharia e arquitetura para desenvolver projetos claros, seguros e economicamente eficientes, pensados para a execução e rigorosamente alinhados às normas brasileiras.


Nossa missão
Nosso compromisso
Projetar soluções técnicas que garantam segurança estrutural e eficiência construtiva, respeitando o conceito arquitetônico e trazendo tranquilidade do projeto à execução.
Nossos Serviços
Soluções completas em projetos estrutural, elétrico e hidráulico, pensadas para funcionar na obra e respeitar o projeto arquitetônico.
Projetos Estruturais




Projetos Hidráulicos
Projetos Elétricos


Assine nossa newsletter
Receba dicas e novidades sobre engenharia